 |

ОПРОС
 |
 |
С какой целью вы посетили сайт
? |
 |
 |
|
 |
Результаты
|
 |
Время
работы:с 09-19 часов по будним дням с 09-17 часов в субботу
Наш адрес:Полушкина роща 16
Наш
телефон:(4852) 90-36-86
e-Mail:
a-st46@ya.ru

|
 |
|
|
 |
|
 |
|
 |
Заказчикам  
 Советы
строителей  
 Страхование домов
 
 Строительство в кредит
 |
 |
Фирма "Стройком" создана на базе
производственного комплекса, состоящего из 25 разнопрофильных
бригад, выполняющих строительные работы. Мы осуществляем
архитектурное проектирование и строительство домов, коттеджей, бань.
Наша компания строит зимние загородные (деревянные,
кирпичные, пенобетонные) дома, летние дачные дома и бани в Ярославле
и Ярославской области и других регионах, как по индивидуальным
проектам, так и предлагая типовые проекты деревянных/кирпичных домов
и коттеджей. »»
|


| |
|
Планы
 |
| |
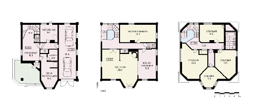
ПЕРВЫЙ ЭТАЖ | ВТОРОЙ ЭТАЖ | МАНСАРДА |


|
 |
|
общая площадь | 290.0 кв.м |
|
жилая площадь | 126.5 кв.м |
|
материал стен | камень (блоки) |
|
Предлагаемый трехуровневый, квадратный в плане коттедж разработан в достаточно нетрадиционной для данного типа сооружений конструктивной схеме – жестком стальном каркасе. Эта конструкция устанавливается на сплошную ребристую ж/б платформу основания и работает совместно с замоноличиваемыми прямо на месте ж/б перекрытиями. Наружные стены, таким образом, являются самонесущими, на первом этаже – газобетонные, выше – каркаснообшивные с эффективным утеплителем. Планировка дома достаточно традиционна. На первом этаже находятся гараж на два автомобиля, котельная и зона релаксации. Второй уровень – зона дневного пребывания и третий – интимная зона дома. Замысловатая форма спален может быть упрощена за счет подвижки перегородок.
ОСНОВНЫЕ КОНСТРУКЦИИ И МАТЕРИАЛЫ:
| фундамент |
монолит. ж/б платформа |
| стены |
газобетонные блоки – 1-й этаж, каркас – 2-й этаж |
| перегородки |
кирпич и сборные |
| перекрытия |
монолит. ж/б |
| кровля |
металло- черепица |
|
ЭЛЕМЕНТЫ НАРУЖНОЙ ОТДЕЛКИ:
|
цоколь |
тесаный камень |
|
фасады |
виниловая вагонка |
|
СТОИМОСТЬ ПРОЕКТА H-0653-0
Полный комплект застройщика: |
31820 р. |
Основная лицензия + рабочие чертежи: |
26270 р. |
Паспорт для согласования: |
2960 р. |
|
|