 |

ОПРОС
 |
 |
С какой целью вы посетили сайт
? |
 |
 |
|
 |
Результаты
|
 |
Время
работы:с 09-19 часов по будним дням с 09-17 часов в субботу
Наш адрес:Полушкина роща 16
Наш
телефон:(4852) 90-36-86
e-Mail:
a-st46@ya.ru

|
 |
|
|
 |
|
 |
|
 |
Заказчикам  
 Советы
строителей  
 Страхование домов
 
 Строительство в кредит
 |
 |
Фирма "Стройком" создана на базе
производственного комплекса, состоящего из 25 разнопрофильных
бригад, выполняющих строительные работы. Мы осуществляем
архитектурное проектирование и строительство домов, коттеджей, бань.
Наша компания строит зимние загородные (деревянные,
кирпичные, пенобетонные) дома, летние дачные дома и бани в Ярославле
и Ярославской области и других регионах, как по индивидуальным
проектам, так и предлагая типовые проекты деревянных/кирпичных домов
и коттеджей. »»
|


| |
|
Планы
 |
| |
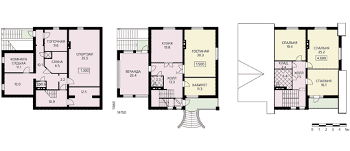
ЦОКОЛЬНЫЙ ЭТАЖ | ПЕРВЫЙ ЭТАЖ | МАНСАРДА |


|
 |
|
общая площадь | 280.0 кв.м |
|
жилая площадь | 102.3 кв.м |
|
материал стен | камень (блоки) |
|
Традиционный загородный дом с низко спускающимися скатами кровли. В объеме дом представляет собой две сблокированные, разноэтажные постройки, подведенные под одну кровлю. Основная часть дома трехуровневая с цокольным этажом и мансардой. Небольшая пристройка имеет цокольный этаж с мансардным завершением. На первый этаж ведет высокая, красивая лестница. Планировка этого этажа представлена гостевыми помещениями. Центральное место здесь занимает холл, из которого можно попасть во все помещения и через веранду выйти на улицу. В мансарде расположены спальни и ванная комната. Цокольный этаж традиционно отведен под служебные и технические помещения. Сюда можно попасть из холла первого этажа или непосредственно с улицы, спустившись по лестнице. Кровля
с большими скатами и большой плоскостью покрытия требует особо тщательного подхода к выбору кровельного материала.
ОСНОВНЫЕ КОНСТРУКЦИИ И МАТЕРИАЛЫ:
| фундамент |
сборный ж/б по монолитной плите |
| стены |
ячеистый бетон |
| перегородки |
кирпич |
| перекрытия |
плиты ж/б |
| кровля |
металло- черепица |
|
ЭЛЕМЕНТЫ НАРУЖНОЙ ОТДЕЛКИ:
|
цоколь |
облицовочный камень |
|
фасады |
лицевой кирпич или декоративная штукатурка |
|
СТОИМОСТЬ ПРОЕКТА H-1204-0
Полный комплект застройщика: |
31820 р. |
Основная лицензия + рабочие чертежи: |
26270 р. |
Паспорт для согласования: |
2960 р. |
|
|